Logo Arun's Portfolio
  • Home
  • About
  • Experiences
  • Projects
  • Posts
Logo Inverted Logo
  • Tags
  • Automation
  • Construction Admin
  • Design
  • Independent Review
Cedar Drive Drinage Pump Station Upgrades hero
Cedar Drive Drinage Pump Station Upgrades

Project background The Cedar Drive Pump Station, built in the late 1970s, is flood protection infrastructure for the City of Port Coquitlam at the confluence of Cedar Creek and Hyde Creek. It was operating under capacity, deteriorating (driving up operational costs), and provided inadequate fish passage in an environmentally sensitive area. The project was a complete replacement of the aging pump station and associated floodbox. The site is constrained - close to residential properties, the Traboulay PoCo Trail, and fish habitats for Coho and Chum Salmon. The new structure needed to hit required hydraulic capacity for current and future needs, meet post-disaster seismic requirements (1-in-2,475-year return period earthquake), and satisfy modern fish passage standards.

  • Design
  • Construction Admin
Tuesday, July 8, 2025 | 3 minutes Read
Carrera IEC Upgrades hero
Carrera IEC Upgrades

The Lulu Island Energy Company (LIEC), partnered with Corix Utilities Inc. (Corix), operates the Richmond District Energy Utility (RDEU) in Richmond, BC. They needed to connect the new Park Residences II (Mah Bing) Towers D + E and C developments to the RDEU, which required upgrades to the existing Carrera Interim Energy Centre (IEC). My role I was the structural designer for Associated Engineering, handling all structural engineering from conceptual design through construction completion and handover.

  • Design
  • Construction Admin
Tuesday, April 23, 2024 | 1 minute Read
Deh Cho Housing Restoration hero
Deh Cho Housing Restoration

After severe flooding devastated remote northern communities in the Northwest Territories, I worked as a Structural EIT to help restore safe housing for displaced residents. This was a joint effort between Associated Engineering (structural design) and Collier Project Leaders (project management), for the Government of NWT, Municipal and Community Affairs (MACA). I conducted structural assessments, made repair and restoration recommendations, and supported design and construction review. With winter approaching, there was real urgency to get people back in their homes.

  • Construction Admin
Saturday, October 23, 2021 | 3 minutes Read
Kitkatla WTP Upgrades hero
Kitkatla WTP Upgrades

This project involved expanding and upgrading the wastewater treatment plant (WWTP) in Gitxaala. I was responsible for preparing the initial structural upgrade plans and developing a Class D cost estimate for the proposed expansion. What I did Initiated discussions with process mechanical, electrical, and building mechanical disciplines to understand the full implications of the WWTP expansion on cost. Reviewed existing facility plans and analyzed relevant building codes and regulatory requirements to identify potential challenges and cost impacts early. Compiled a detailed cost spreadsheet by synthesizing input from all disciplines. Focused on identifying and quantifying the significant cost items. Organized a teleconference with the client to review and clarify the assumptions behind the cost estimate. Benchmarked the overall projected cost against cost-per-area metrics from the Altus Canadian Cost Guide. Issued the final Class D cost estimate to the client. Outcome The client agreed with the proposed Class D cost estimate. This established a reliable financial baseline for the project. My estimate set the stage for continued involvement in providing progressively more accurate cost estimates as the project advances through later design stages.

  • Design
  • Construction Admin
Thursday, September 23, 2021 | 1 minute Read
Bay Avenue Wastewater Pump Station hero
Bay Avenue Wastewater Pump Station

This project was a redesign and structural upgrade of the Bay Avenue Wastewater Pump Station, a 300 L/s facility on a tightly constrained site. The site had steep excavations requiring temporary shoring. I designed a new valve chamber and second wet well integrated with the existing concrete wet well, engineered strengthening details to bring the existing wet well up to current seismic and operational codes, and detailed a guide track system for a material conveyance cart.

  • Design
  • Construction Admin
Wednesday, June 23, 2021 | 3 minutes Read
Simon Fraser Univesity Parcel 21 hero
Simon Fraser Univesity Parcel 21

Situated on Simon Fraser University’s Burnaby campus, the Parcel 21 energy-efficient residence will house over 80 affordable rental apartment units. It comprises a four-storey wood frame building on a concrete parkade, plus a six-storey wood frame building. Associated Engineering was retained to provide structural and electrical engineering services on this $21.5 million project. To meet the rigorous BC Energy Step Code requirements, we applied many passive house principles in the design of the project, including:

  • Construction Admin
Wednesday, December 23, 2020 | 1 minute Read
Crd Residuals Treatment Facility hero
Crd Residuals Treatment Facility

Associated Engineering was a key team member in the successful Design-Build-Operate Pursuit for the future ~$100 million Residuals Treatment Facility (RTF) for the Capital Regional District (CRD). The RTF will receive and stabilize the residuals (i.e., primary sludge, waste activated sludge) from the CRD’s future $765 million McLoughlin Point Wastewater Treatment Plant, a 108-ML/d tertiary treatment plant; the RTF will also receive and stabilize hauled wastes from the region. Associated Engineering is the Engineering Team Lead and, together with the constructors, technology provider and operator, will be implementing a facility includes equalization, thickening, anaerobic digestion, dewatering, beneficial use of biogas, drying and heat recovery. The facility will include an operations/ administration building with a LEED Gold target, and a sophisticated odour control system.

  • Construction Admin
Monday, March 23, 2020 | 1 minute Read
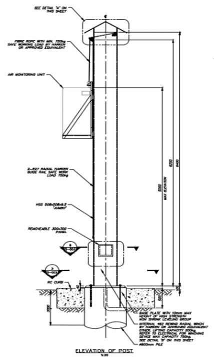
Maclean Park Air Monitoring Station hero
Maclean Park Air Monitoring Station

Metro Vancouver needed a new air quality monitoring station at MacLean Park, 710 Keefer Street, Vancouver, BC. The requirement was to elevate an “Airpointer + PM” air quality monitor (~400 lbs) to 5 meters for accurate air quality sampling. The engineering challenges: The support structure needed to allow safe lowering for regular maintenance via a mechanical winch. The design had to be slender yet stiff enough to handle wind and seismic loads while keeping the sensitive equipment steady. The solution needed to be cost-effective, non-intrusive to the public park, and quick to build. The winch housing had to be secure, tamper/vandalism-resistant, and accommodate internal cabling. What I did I was the lead structural engineer for Associated Engineering on this project, responsible for the full structural design.

  • Design
  • Construction Admin
Monday, December 23, 2019 | 2 minutes Read
Powell River Wastewater Treatment Plant hero
Powell River Wastewater Treatment Plant

Project type: Consolidated Wastewater Treatment Plant Location: Powell River, BC My role: Structural Designer The Powell River WWTP has two main structures: an administration building and a process building. I designed structural elements in concrete, masonry, steel, and wood-frame construction. A prominent feature is a structure with a raft slab foundation supporting a two-storey concrete building, a structural steel roof, and a wood-framed canopy designed for a future green roof.

  • Design
  • Construction Admin
Sunday, October 20, 2019 | 4 minutes Read
Back Road Inlet Debris Deflector hero
Back Road Inlet Debris Deflector

The existing stormwater inlet kept getting blocked by debris, which created a real flooding risk for nearby properties. The old trash rack wasn’t cutting it. What I did I was tasked with designing a new debris deflector and conceptually integrating it with other flood protection measures like extended berms. Designed a steel debris deflector following USDOT Federal Highway Administration “Debris Control Structures” guidelines: Specified re-purposed railroad rails (or equivalent) for structural integrity and longevity - significantly tougher than the existing trash rack. Designed a large surface area to maximize debris deflection away from the inlet. Used a sharp angle to help debris naturally move to the channel edges for easier removal. Set the apex angle between 15 and 25 degrees, with total side area at least 10 times the culvert’s cross-sectional area. Followed guidelines for bar spacing relative to the minimum culvert span dimension. Made sure that even if the sides get partially blocked, water can still spill over the top into the inlet - no complete blockage. Flood mitigation: The deflector was one piece of a larger strategy. Combined with extended berms, it would significantly reduce flooding risk to adjacent properties.

  • Design
  • Construction Admin
Monday, September 23, 2019 | 2 minutes Read
Navigation
  • About
  • Experiences
  • Projects
  • All Projects
  • MyApps
Contact me:
  • [email protected]
  • rpakishore
  • Arun Kishore