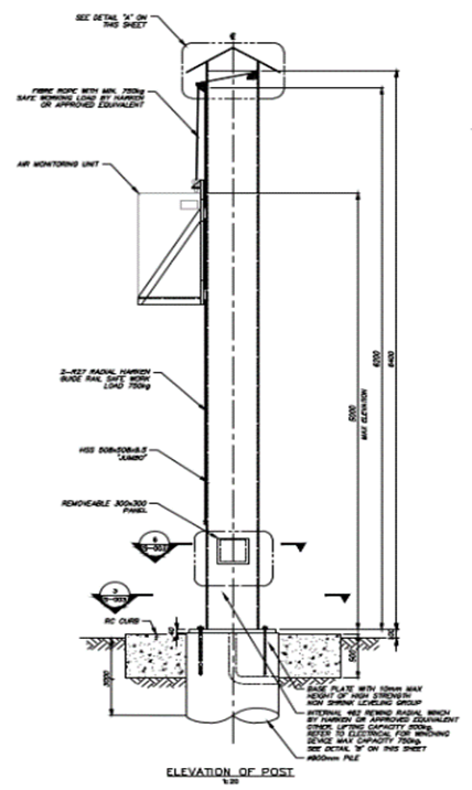
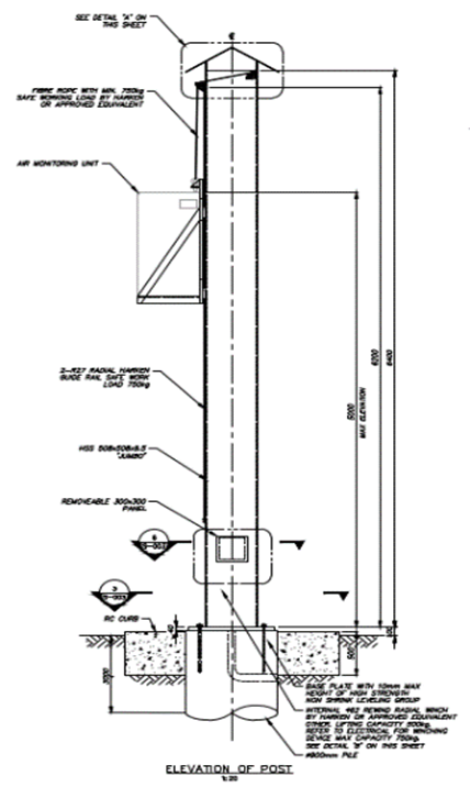
Metro Vancouver needed a new air quality monitoring station at MacLean Park, 710 Keefer Street, Vancouver, BC. The requirement was to elevate an “Airpointer + PM” air quality monitor (~400 lbs) to 5 meters for accurate air quality sampling.

The engineering challenges:

  • The support structure needed to allow safe lowering for regular maintenance via a mechanical winch.
  • The design had to be slender yet stiff enough to handle wind and seismic loads while keeping the sensitive equipment steady.
  • The solution needed to be cost-effective, non-intrusive to the public park, and quick to build.
  • The winch housing had to be secure, tamper/vandalism-resistant, and accommodate internal cabling.

What I did

I was the lead structural engineer for Associated Engineering on this project, responsible for the full structural design.

  • Design and analysis:

    • Designed the 5-meter high steel support post, reinforced concrete foundation, and structural supports for the winch system.
    • Used a large square hollow steel section (HSS) that houses the mechanical lifting device and provides maintenance access. The HSS keeps deflections minimal under wind and seismic loads, and it looks appropriate in the park setting.
    • Performed structural analyses and calculations using advanced software, ensuring compliance with building codes and seismic standards.
  • Geotechnical coordination:

    • Managed the geotechnical sub-consultant (EXP) and integrated their site-specific findings and soil parameters into the foundation design.
  • Inter-disciplinary coordination:

    • Worked with mechanical and electrical teams to make sure the structural system supported their equipment - air monitor, winch mechanism, cabling - with all interfaces properly accounted for.
  • Construction support:

    • Site visits and project meetings during construction to verify adherence to the structural design.
    • Reviewed structural shop drawings and responded to RFIs.

Deliverables

  • Complete structural design package: drawings with member sizes, connection details, and material specs for the steel post and concrete foundation.
  • Structural analyses and calculations, plus foundation design report demonstrating compliance with all applicable load cases.
  • Design Basis Memorandum outlining the structural design principles, governing codes, load paths, and analytical methods.
  • Construction phase support: shop drawing reviews, RFI responses, and site presence.
  • Letters of Assurance as required by the authority having jurisdiction.